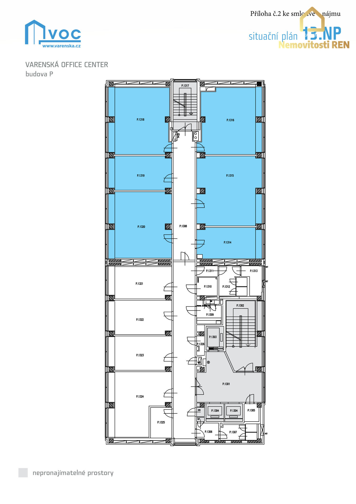
Moderní a atraktivní prostředí nabízí kancelářské prostory o celkové ploše 275 m², které se nacházejí ve 13. patře administrativní budovy.
Jedná se o oddělený kancelářský celek, který tvoří 4 kanceláře o velikosti cca 40 m² a 2 kanceláře o velikosti cca 20 m², doplněné o společné prostory – chodbu a sociální zázemí.
Preferován je pronájem celého prostoru jako jednoho celku.
Přístup do objektu je zajištěn schodištěm i výtahy.
Bezpečnost budovy zaručuje non-stop bezpečnostní služba, kontrolovaný vstup přes recepci s nepřetržitým provozem a elektronické zabezpečení celého objektu.
Kanceláře jsou klimatizované, světlé a nabízejí krásný výhled na Ostravu. Jsou vybaveny hliníkovými žaluziemi a rozvody PC sítí a internetu. V jedné z místností je umístěna kuchyňská linka.
V okolí je veškerá občanská vybavenost, včetně nákupního centra Futurum, restaurací i služeb. Výborná je rovněž dopravní dostupnost – v blízkosti se nachází zastávky MHD (tramvaj, autobus, trolejbus) i přímé napojení na hlavní silniční tahy a dálnici.
Cena nájmu: 265,83 Kč / m² / měsíc/ bez DPH
Služby a energie: 180 Kč / m² / měsíc / bez DPH
Pokud Vás tato nabídka zaujala, neváhejte mě kontaktovat.
Těším se na Vás na společné prohlídce!
- Plocha:275 m2
- Druh objektu:skeletová
- Stav objektu:velmi dobrý
- Druh prostor:Kanceláře
- Umístění objektu:centrum obce
- Doprava:vlak; dálnice; silnice; MHD; autobus
- Komunikace:asfaltová
- Elektřina:Elektro - 380 V
- Voda:Rozvod studené a teplé vody
- Telekomunikace:Internet
- Odpad:Kanalizace
- Ostatní rozvody:Kabelové rozvody
- Energetická náročnost budovy:C - Úsporná
- Energetický ukazatel
podle vyhlášky:č. 78/2013 Sb. - Energetický průkaz:stáhnout
